Property
物件情報
岐阜エリア南鶉
プレステージ岐阜市南鶉 K
岐阜県岐阜市南鶉七丁目46番13
岐阜市南鶉にモデルハウス販売開始
3,795万円
-
土地面積
176.36㎡ -
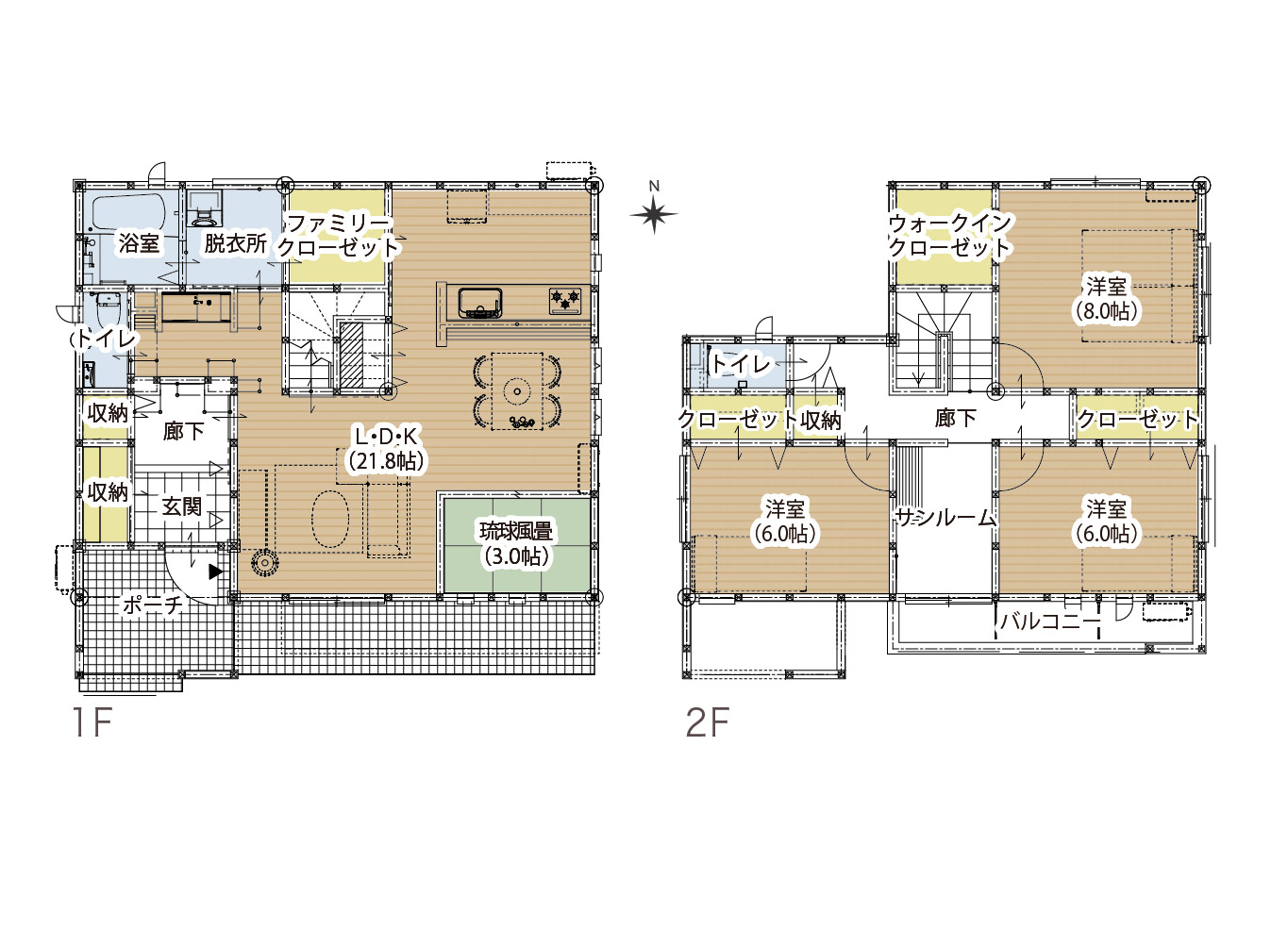
間取り
3LDK+畳コーナー+FC+WIC+サンルーム -
駅車
5分
徒歩10分圏内に小中学校・スーパー・
薬局・コンビニが揃う子育て世代に嬉しい立地!
玄関からは水回り→キッチン→リビングまで
ぐるっと一周できる間取りで家事を効率化。
使い方自由な畳スペース&サンルーム付きです。
ご来場予約受付中です。
お見積りやご相談、ご見学されたい方は下記フォームよりお問合せください。
薬局・コンビニが揃う子育て世代に嬉しい立地!
玄関からは水回り→キッチン→リビングまで
ぐるっと一周できる間取りで家事を効率化。
使い方自由な畳スペース&サンルーム付きです。
ご来場予約受付中です。
お見積りやご相談、ご見学されたい方は下記フォームよりお問合せください。
-
受付時間 : 9:00〜18:00 水曜定休
電話で問い合わせる
0120-47-3441 -
この物件に問い合わせる
Equipment
設備・仕様
オール電化
(オプション対応)プロパンガス
(オプション対応)都市ガス
(オプション対応)給湯システム
ダウンライト照明
シーリングファン
家具
エアコン
吹き抜け
ハイグレードキッチン
パントリー
タンクレストイレ
トイレ洗面付き
室内物干し
スマートキー
エクステリア
Environment
周辺環境
-
鶉保育園
1.3km -
鶉小学校
986m -
境川中学校
703m -
カネスエ 中鶉店
380m -
ファミリーマート 南うずら五丁目店
428m -
クスリのアオキ 南鶉店
573m -
笠松病院
1.4km
Information
物件情報
| 所在地 | 岐阜県岐阜市南鶉七丁目46番13 |
|---|---|
| 交通 | 岐阜市コミュニティバス「JA鶉支店前」徒歩約2分 名鉄竹鼻線「柳津駅」車で約5分 |
| 総区画 | 12 |
| 販売区画 | 3 |
| 敷地面積 | 176.36㎡(53.34坪)延床面積:120.07㎡(36.32坪) |
| 地目 | 宅地 |
| 用途地域 | 第一種住居地域 |
| 建ぺい率・容積率 | 60% 200% |
| 道路道幅 | 南側公道5.2m |
| 設備 | 公共上下水道 都市ガス 中部電力 |
| 学校区 | 鶉小学校 境川中学校 |
| 別途 | 別途上下水道取込加入金要 |
| 設計・施工 | 株式会社 伊田屋 |
| 建築条件 | 建築条件付土地分譲 |
| 取引形態 | 売主 |
Same section
同じ区画の物件を見る
-
岐阜エリア |南鶉
プレステージ岐阜市南鶉 -
岐阜エリア |南鶉
プレステージ岐阜市南鶉
Contact
この物件の来場予約


