イベント
【期間限定】「収納もデザインに変わる、ホテルライクの邸宅。」見学会 in PRESTIGE蘇原吉野町
開催日時2026年2月21日-3月31日 10:00-17:00
開催場所 各務原市蘇原吉野町
収納もデザインに変わる、ホテルライクの邸宅。
玄関を開けた瞬間から、寝室で眠りにつくまで。
365日、ホテルにチェックインした時のような高揚感が続く暮らしが、ここから始まります。
塗り壁の重厚な外観から一歩中へ入れば、そこは街の喧騒を忘れさせる異空間。
玄関を開けた瞬間、間接照明がデザイン壁を浮かび上がらせる。
この「光と影の演出」が、仕事モードの緊張を解きほぐし、一瞬で「ホテルにチェックインした時」のような高揚感へと誘います。
外壁から内装のアクセントウォールまで、質感を統一。
見て触れて感じる「本物感」が、住む人のイメージを底上げします。

■この見学会で体感できる「3つのリアル」
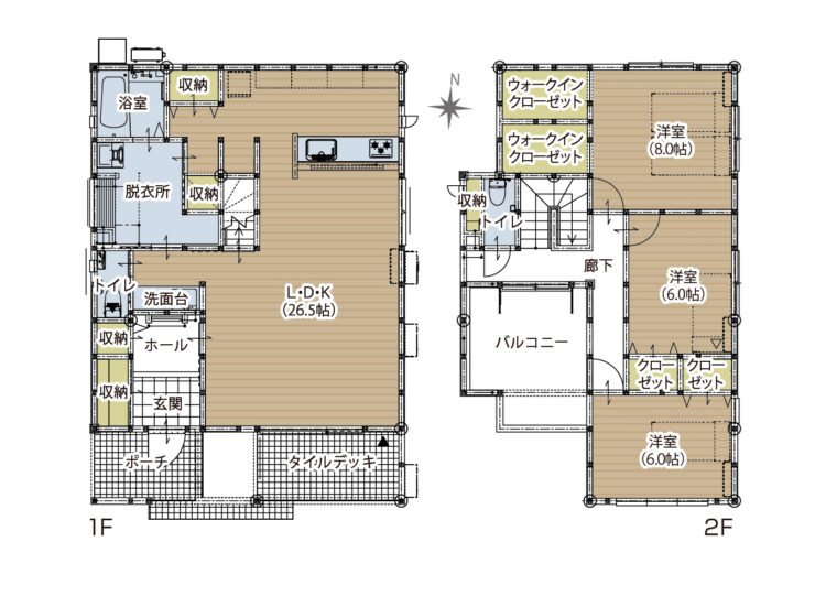
01.26.5帖の開放感を守る「整う」収納
玄関横の便利スペース、階段下活用、そして夫婦別のWIC。
「物の帰り道」を徹底的に計算することで、リビングに私物が溢れるのを防ぎ、圧倒的な大空間を常に美しく保ちます。
02.光と質感が織りなす「静寂の演出」
塗り壁の外装、玄関正面のギャラリー、室内のアクセントウォール。
計算された間接照明が、それらの質感をドラマチックに浮かび上がらせます。
夜、お気に入りのソファに座れば、そこはもう極上のラウンジです。
03.日常を非日常に変える「家事最短ルート」
「洗う・干す・しまう」を数歩で完結。 機能性をデザインの裏側に隠すことで、家事を「面倒な作業」から「スマートなルーティン」へ。
浮いた時間は、家族でテラスデッキを楽しむための時間になります。



■抜群のロケーション
【蘇原中学校すぐ北】
- 文教地区の安心感: 蘇原保育所、蘇原第一小学校も至近。子どもの成長を街が見守る環境。
- 利便性の高さ: コンビニ、ドラッグストア、スーパーが徒歩圏内。
- 静寂の住環境: 便利でありながら、一歩入れば落ち着いた住宅街。
■イベント詳細
- 日程: 2025年 2月21日(土)-3月31日(火)
- 時間: 10:00 〜 17:00 (予約制 このページの下部のフォームからお申し込みください。)
- 場所: 岐阜県各務原市蘇原吉野町3丁目133番8
- ご成約特典: 【決算キャンペーン】 家具・家電50万円分プレゼント!
「いつか」ではなく「毎日」を、ホテルで過ごす。
写真だけでは伝えきれない、塗り壁の質感や、 空気が一変する大空間の開放感を、ぜひ現地で体感してください。
住む人の感性を研ぎ澄まし、暮らしを整える。 その答えが、この「ホテルライクの邸宅」にあります。


■物件所在地


