Event
イベント
見学会
【PRESTIGE無動寺】クリスマスフェア│ビンゴ大会&今年最後の建売住宅大商談会
開催日時12月20(土)・21(日)・27(土)・28(日) 【終日受付中】10:00~17:00
開催場所 PRESTIGE無動寺
PRESTIGE無動寺にて今年最後の建売住宅大商談会を開催いたします。
新しい一年を迎える前に、理想の住まい探しを始めてみませんか。
スタッフ一同、皆さまのご相談に丁寧にお応えし、安心してご検討いただけるよう心を込めてご案内いたします。
ご来場いただいたお子様全員にお菓子の詰め合わせプレゼント!
大ビンゴ大会開催!
ビンゴ達成│大人気テーマパークペアチケット
ダブルリーチ│お掃除ロボット
リーチ│エアーシェイプマット
リーチ│選べるギフトカード5,000円分
リーチ│選べるギフトカード3,000円
ご家族でお越し頂いた初めてのお客さまで、アンケートをご記入頂き次回商談予約された方のみに限ります。
ご成約あみだくじ!
TV・旅行券・グルメギフト・500,000円分オプション品・全室エアコン
PRESTIGE無動寺
下羽栗小学校・笠松中学校区
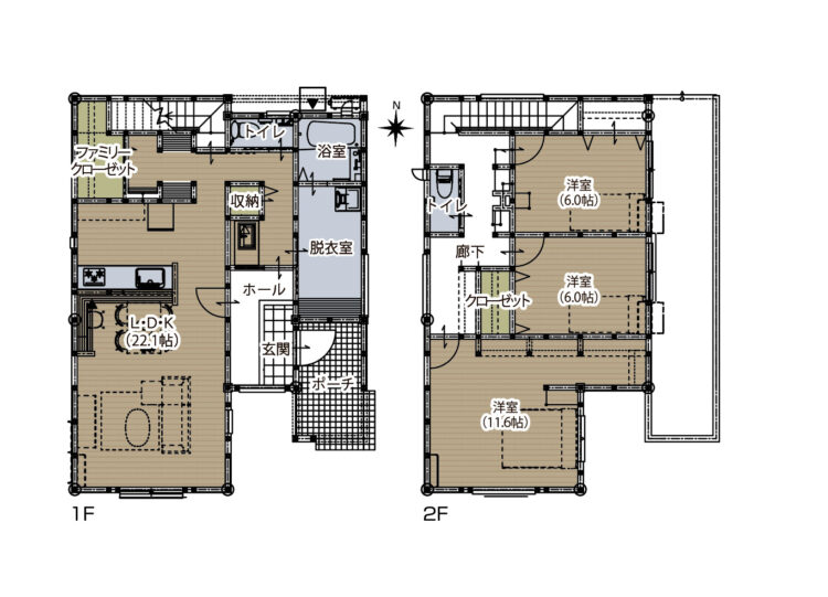
\ ただいま動線と家事動線のこだわり間取り、最終一棟! /


Google Map
車でお越しの方は『羽島郡笠松町無動寺時猿町262-6』とカーナビにご入力ください。
PRESTIGE無動寺の詳細や周辺環境はこちらをクリック!
お申込み方法
下記フォームもしくは
お電話よりご予約ください。
予約用フリーダイアル:0120-47-3441
お申し込みは下記フォームから
Contact


