Property
物件情報
羽島エリア福寿町間島
プレステージ福寿町Ⅰ A
岐阜県羽島市福寿町間島字角田22番1
白に包まれるひとつ上の暮らし。福寿町にモデルハウス公開中。
3,645万円
-
土地面積
207.74㎡ -
間取り
3LDK+畳コーナー+WIC+FCL -
駅徒歩
15分
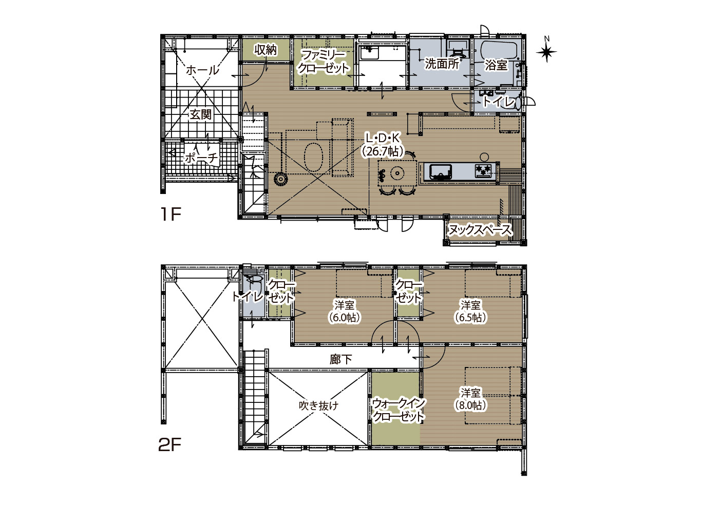
26.7帖の大空間LDK×吹き抜け×ヌック
玄関から水回り、リビングが
ぐるっと回遊できる間取りで家事効率◎
キッチン前に設けたヌック(こもりスペース)は
お子さまが遊んだりくつろいだりできるスペースで
支度をしながら見守ることができます。
ご来場予約受付中です。
こちらの物件の詳細が気になる方や
お見積りを希望の方は
下記フォームよりお気軽にお問合せください。
玄関から水回り、リビングが
ぐるっと回遊できる間取りで家事効率◎
キッチン前に設けたヌック(こもりスペース)は
お子さまが遊んだりくつろいだりできるスペースで
支度をしながら見守ることができます。
ご来場予約受付中です。
こちらの物件の詳細が気になる方や
お見積りを希望の方は
下記フォームよりお気軽にお問合せください。
-
受付時間 : 9:00〜18:00 水曜定休
電話で問い合わせる
0120-47-3441 -
この物件に問い合わせる
Equipment
設備・仕様
オール電化
(オプション対応)プロパンガス
(オプション対応)都市ガス
(オプション対応)給湯システム
ダウンライト照明
シーリングファン
家具
エアコン
吹き抜け
ハイグレードキッチン
パントリー
タンクレストイレ
トイレ洗面付き
室内物干し
スマートキー
エクステリア
Environment
周辺環境
-
はしま西幼稚園
653m -
竹鼻小学校
425m -
竹鼻中学校
1.4㎞ -
セブンイレブン羽島竹鼻町丸の内店
735m -
トミダヤ羽島店
761m -
羽島皮膚科・内科
207m
Information
物件情報
| 所在地 | 岐阜県羽島市福寿町間島字角田19番 |
|---|---|
| 交通 | 名鉄竹鼻線「竹鼻駅」955m 羽島市コミュニティバス「文化センター」639m |
| 総区画 | 9 |
| 販売区画 | 7 |
| 敷地面積 | 207.74㎡(62.84坪) |
| 地目 | 宅地 |
| 用途地域 | 準工業地域 |
| 建ぺい率・容積率 | 60% 200% |
| 道路道幅 | 南側公道幅員6.0m 開発道路幅員6m |
| 設備 | 公共上下水道 プロパンガス 中部電力 |
| 学校区 | 竹鼻小学校 竹鼻中学校 |
| 別途 | 別途上下水道取込加入金要 |
| 設計・施工 | 株式会社 伊田屋 |
| 建築条件 | 条件なし |
| 取引形態 | 売主 |
Same section
同じ区画の物件を見る
-
羽島エリア |福寿町間島
プレステージ福寿町 -
羽島エリア |福寿町間島
プレステージ福寿町
Contact
この物件の来場予約


