Property
物件情報
各務原エリア那加日吉町
プレステージ那加日吉町 B
岐阜県各務原市那加日吉町一丁目76番1
名鉄新加納駅すぐ近く!那加日吉町2Bモデルハウス完成
3,945万円
-
土地面積
162.21㎡ -
間取り
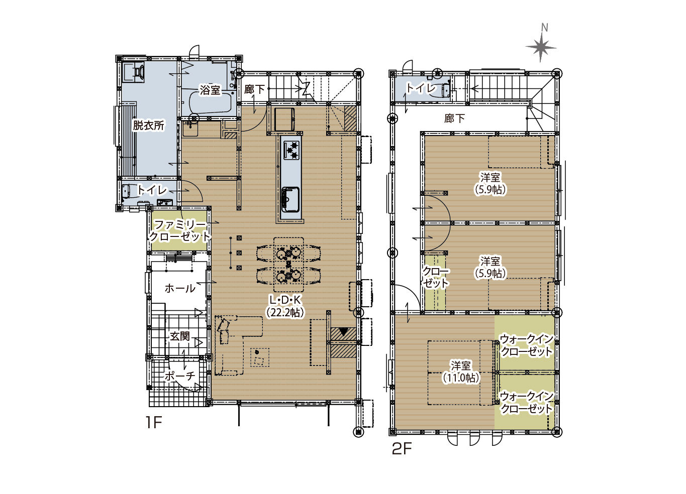
3LDK -
駅徒歩
6分
那加駅まで歩いて約6分の好立地。
家事動線にこだわり
見守りながら家事ができる子育て世帯にぴったりの住まいです。
ご来場予約受付中です。
詳細が気になる方やお見積り、ご相談、
ご見学を希望される方はお気軽に下記フォームよりお問い合わせ下さい。
家事動線にこだわり
見守りながら家事ができる子育て世帯にぴったりの住まいです。
ご来場予約受付中です。
詳細が気になる方やお見積り、ご相談、
ご見学を希望される方はお気軽に下記フォームよりお問い合わせ下さい。
-
受付時間 : 9:00〜18:00 水曜定休
電話で問い合わせる
0120-47-3441 -
この物件に問い合わせる
Equipment
設備・仕様
オール電化
(オプション対応)プロパンガス
(オプション対応)都市ガス
(オプション対応)給湯システム
ダウンライト照明
シーリングファン
家具
エアコン
吹き抜け
ハイグレードキッチン
パントリー
タンクレストイレ
トイレ洗面付き
室内物干し
スマートキー
エクステリア
Environment
周辺環境
-
那加中学校
1400m -
ファミリーマート各務原総合体育館店
843m -
新加納内科
488m -
スーパー三心
1200m
-
那加第三小学校
1000m
Information
物件情報
| 所在地 | 岐阜県各務原市那加日吉町一丁目76番1 |
|---|---|
| 交通 | '名鉄各務原線「新加納駅」426m 各務原市ふれあいバス「新加納町東」224m |
| 総区画 | 2 |
| 販売区画 | 2 |
| 敷地面積 | 162.21㎡ |
| 地目 | 宅地 |
| 用途地域 | 第1種住居地域 |
| 建ぺい率・容積率 | 60% 200% |
| 道路道幅 | 西側公道南側公道 幅員5.15m |
| 設備 | 公共上下水道 都市ガス 中部電力 |
| 学校区 | 那加第三小学校 那加中学校 |
| 別途 | 別途上下水道取込加入金要 |
| 設計・施工 | 株式会社 伊田屋 |
| 建築条件 | 建築条件付土地分譲 |
| 取引形態 | 売主 |
Same section
同じ区画の物件を見る
Contact
この物件の来場予約


